全国[切换]

地板都不铺!80㎡2室2卫,如此精致的北欧风

2020-01-09 13:43

来源:点击:11247

更多装修效果图尽在装修乐http://www.zxl.com/

精致的两居室

80㎡精致北欧风,生活还可以活成另一个模样

最近听到一个很有意思的事情

原来,除了真人网红外

在房子界,也有一些凭借

过了一层滤镜后的“高颜值”,而风靡一时

地板都不铺!80㎡2室2卫,如此精致的北欧风

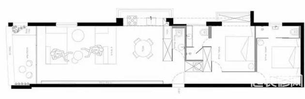
80㎡精致北欧风平面布局

不同于那些精美于滤镜中的网红家

“尚未完工”的精装质感

令这个80㎡的住宅脱颖而出

地板都不铺!80㎡2室2卫,如此精致的北欧风

生活的气息

流转于大白墙与裸露的水泥之间

在残缺中寻找到了,更另类的家居美

地板都不铺!80㎡2室2卫,如此精致的北欧风

客厅的电视墙

被纯白的金属架覆盖

每一个小格子,都是一个个储物空间

地板都不铺!80㎡2室2卫,如此精致的北欧风

开放式的家居模式

厨房被设计在通透的百叶窗前

冰箱等家电

被隐藏在一旁的壁柜之中

地板都不铺!80㎡2室2卫,如此精致的北欧风

L式的厨房设计

中央的剩余面积

用作于家中的餐厅布置

地板都不铺!80㎡2室2卫,如此精致的北欧风

黑、白的餐厅环境

在裸露的水泥墙映衬下

一丝都不觉得粗糙、单调

地板都不铺!80㎡2室2卫,如此精致的北欧风

地板都不用铺

这样的水泥地,也觉得挺舒适

不用传统的玻璃隔断

甚至连个窗帘都没有

客厅与阳台之间的距离

仅仅只用一个挂式的百叶帘

地板都不铺!80㎡2室2卫,如此精致的北欧风

既可以遮挡室外的视线

又可以方便于阳光的穿透

室外的小阳台

给栏杆旁加了一层木隔板

顶部的筒灯

直接射向,小客厅的位置

地板都不铺!80㎡2室2卫,如此精致的北欧风

裸露的红色电线

这是房间走廊里的最重要装饰

地板都不铺!80㎡2室2卫,如此精致的北欧风

2个主卧,2个卫生间

80㎡的北欧风,还可以如此布置

地板都不铺!80㎡2室2卫,如此精致的北欧风

深灰色的主卧墙体

将窗边的空间,也全都利用

嵌入式的壁柜

一半是百叶窗,一半是收纳橱柜

床头的吊灯,也是极为有趣

黄铜的质地,令家居更为精致

一道隐形隔板,遮住了

与卫生间之间的距离

地板都不铺!80㎡2室2卫,如此精致的北欧风

黑白小瓷砖,典型的北欧风设计

小圆镜一旁搭配置物柜

重新梳理了卫浴产品的收纳

地板都不铺!80㎡2室2卫,如此精致的北欧风

地板都不铺!80㎡2室2卫,如此精致的北欧风

地板都不铺!80㎡2室2卫,如此精致的北欧风

另一间的侧卧,以淡淡的粉色为主

相框、灯线、床套

都有着配套统一的粉色系

地板都不铺!80㎡2室2卫,如此精致的北欧风

清爽,洁净的卫生间

这件次卧的配套洗手间

并没有配置,洗浴间的陈设

地板都不铺!80㎡2室2卫,如此精致的北欧风

弹簧镜,打破了

传统的镜面设计

左、右可转向的设计

这样的镜饰,似乎更为节约空间

地板都不铺!80㎡2室2卫,如此精致的北欧风

地板都不铺

但这个极简的80㎡却演绎出了

不一样的精装风

地板都不铺!80㎡2室2卫,如此精致的北欧风

一起装修网上市装修平台70%用户来自口碑介绍

我们承诺:装修过程0增项

签单后开工前随时全额退款

施工质量不满意砸掉重新装,费用我们承担

以上,就是装修乐小编给大家带来的地板都不铺!80㎡2室2卫,如此精致的北欧风全部内容,希望对大家有所帮助!

标签: 家装攻略

热门文章

装修公司 更多>>

最新文章 更多>>

免费获取报价

省钱 · 省时 · 省心

今日仅剩100个免费名额

您的信息,我们将严格保密请放心填写

热门标签更多>>

免费报价

免费设计

  • 装修计算器

    今天已经有88位业主获取了装修预算

  • 装修预算报价为75625
    • 材料费 :546464
    • 人工费 :46546
    • 设计费 :1456
    • 质检费 :464123
  • 免费装修设计

    已经有14652人选择

  • *声明 :装修乐为您提供专业、透明、准确的装修报价,该项服务绝不产生任何费用,您的隐私将被严格保密!

  • 提交成功!
  • 稍后装修顾问将来电,免费为您提供装修咨询服务

    如有疑问,可扫码添加客服微信咨询